發表時間: 2022-12-29 17:47:25
作者: 李 群 李國文 郭 娜 (山東三維石化工程股份有限公司青島分公司)
瀏覽: 761

摘要:常減壓裝置存在著低溫輕油和高溫重油兩類腐蝕問題,本文針對常減壓裝置的腐蝕問題并結合煉廠設備材質升級改造實例闡述了防腐對策。針對低溫輕油腐蝕采用 “一脫三注”和“調整常壓塔頂循回流溫度”的措施;針對高溫重油腐蝕,采用提升易腐蝕部位設備材質的措施。
關鍵詞:常減壓裝置;電脫鹽;注氨;注緩蝕劑;注水;設備材質升級
原油中引起設備和管道腐蝕的主要物質是氯化物、硫化物和有機酸等化合物。原油蒸餾時,這些物質被加熱、蒸發、分解或水解,生成氯化氫和硫化氫、環烷酸等介質,造成設備和管道腐蝕。影響設備正常運行,縮短設備及管道使用壽命,大幅增加煉廠生產投資費用。
為減少設備和管道腐蝕,國內外常減壓蒸餾裝置均采用電脫鹽及注化學藥劑的綜合措施,以最大限度延長設備和管道使用壽命及裝置運行周期。近年來,在實踐中還可通過調整易腐蝕段工藝操作參數,并配合材質升級措施,進一步來解決腐蝕問題。
1 常減壓裝置的腐蝕機理
1.1 低溫輕油部位腐蝕
常減壓蒸餾裝置加工高硫高酸原油時,低溫位腐蝕介質主要來源于原油中的氯化物和硫化物,分別會引起HCl腐蝕和H2S腐蝕。
1)原油中鹽類水解生成HCl,在水中與金屬發生反應。在蒸餾冷凝系統中,隨著冷凝水中Cl-增多,腐蝕顯著加重。在相變區,即露點部位,腐蝕更強烈。酸值高的原油更易發生氯化物的水解。原油中所含有的CaCl2和MgCl2一般在200℃開始水解,當濃度較高時,在120℃時即開始水解,隨溫度升高,水解率也提高。在常壓爐出口溫度360℃左右情況下,MgCl2有近90%,CaCl2近16%水解。
水解反應如下:
MgCl2+H2O→Mg(OH)2+2HCl
CaCl2+H2O→Ca(OH)2+2HCl
在分餾塔頂冷凝冷卻系統最初出現冷凝水時,吸收水解產生的HCl生成較濃的鹽酸,對金屬造成嚴重腐蝕。
腐蝕反應機理如下:
Fe+2HCl→FeCl2+H2
另外,鹽酸還會對金屬產生應力腐蝕開裂,特別是對奧氏體不銹鋼。
2)原油中硫化物分解放出H2S,與金屬反應生成FeS,可附在金屬表面上起保護作用。當有HCl存在時,HCl與FeS反應破壞保護層,放出H2S進一步加重腐蝕。
H2S腐蝕反應如下:
Fe+H2S→FeS+H2
FeS+2HCl→FeCl2+H2S
低溫位腐蝕發生在分餾塔頂部系統的塔頂回流入口處塔板、頂油氣管道、空冷器管束入口端及入口管道、冷卻器等部位,其中以常壓塔頂系統最為嚴重。
1.2 高溫部位腐
蒸餾裝置高溫位腐蝕來源于原油中所含的硫、硫化物及環烷酸。高溫硫腐蝕的發生范圍為240~480℃,是均勻腐蝕,腐蝕大小因溫度、硫化氫濃度、介質流速、材質及環烷酸含量不同而改變。環烷酸在低溫時腐蝕不強烈,一旦沸騰,特別是在高溫無水環境中,腐蝕最激烈,是溝槽狀腐蝕,可以認為是H2S氣體先與金屬發生腐蝕,形成FeS,油氣中的環烷酸又和FeS作用,生成可溶于水的環烷酸鐵,使金屬表面繼續被H2S腐蝕。
環烷酸腐蝕部位多在常壓塔下部、減壓塔下部、塔底管道、渣油換熱器、轉油線和渣油泵、焊縫邊緣熱影響區等部位。
腐蝕反應如下:
Fe+2RCOOH→Fe(RCOO)2+H2
FeS+2RCOOH→Fe(RCOO)2+H2S
2 防腐措施
2.1 低溫部位防腐
主要是對原油進行深度脫鹽、盡量降低分餾塔頂冷卻系統HCl的生成量。此外在初餾塔頂、常壓塔頂、減壓塔頂進行注氨、注緩蝕劑和注水。通常稱為工藝防腐的“一脫三注”操作。
2.1.1 電脫鹽
原油電脫鹽是乳化液的破乳化沉降分離過程。主要是加入破乳劑,破壞其乳化狀態,在電場作用下,使微小水滴聚結成大水滴,而使油水分離。由于原油中大部分鹽類溶解于水中,因此,脫水與脫鹽同時進行。
2.1.1.1 優選破乳劑及優化破乳劑操作條件
破乳劑通過破壞原油乳化液中油與水間的液膜達到其破乳作用,破乳劑都有一定的選擇性,針對不同油種必須進行破乳劑評價。選定合適的破乳劑后,要進一步優化破乳劑濃度、注入量、注入點并加強破乳劑與原油的混合程度,以達到最優的脫鹽效果。
破乳劑泵需選用多缸,分別對電脫鹽罐進行注劑,以強化脫鹽效果,節約破乳劑量。
2.1.1.2 優化電脫鹽操作條件
優化電脫鹽操作條件,包括操作溫度、原油注水量、油水混合強度、電場強度的調節等。
①操作溫度 提高溫度,能降低原油粘度,減少水滴運動阻力;能降低油水界面張力,有利破乳和聚結;還能增大布朗運動速度,增強聚結力。溫度還通過影響油水密度差、原油粘度而影響水滴沉降速度,進而影響脫鹽率。試驗數據顯示,油水密度差在100~130℃之間呈上升趨勢,到150℃時開始下降。沉降速度在100~150℃之間上升較快,而溫度再進一步升高,速度增長開始下降。說明溫度在一定范圍內對油水沉降分離產生正面影響。當溫度升高到一定值時CaCl2、MgCl2開始水解,同時隨著溫度升高,原油電導率隨之增大,電耗隨之增高。因此針對特定油種要綜合考慮,找出最佳操作溫度。目前原油脫鹽溫度設計一般都在120~140℃,并且使原油的粘度在9 mm2/s時的溫度較為合適。
②原油注水量 注水與原油混合,增加水滴密度使水滴更易聚結;注水可溶解懸浮在原油中的鹽,與水一并脫除。外界條件一定,注水量增加,脫鹽率隨之增加。注水水質含鹽量越低,脫鹽效果越好。
③油水混合強度 通過混合設備的壓降來衡量油水混合程度。壓降ΔP越大,注入水分散越細,電場中聚結作用越充分,脫鹽率越高。同時,壓降過高,可能造成過乳化,降低脫鹽效果。因此對每一個電脫鹽設施,都要進行試驗總結,找出較合適的混合強度。一般情況下,較大密度原油(0.9111~0.9659 g/cm3)的混合閥ΔP采用30~80 kPa;較小密度原油(0.8017~0.9042 g/cm3)的混合閥ΔP采用50~130 kPa。
④電場強度 提高電場強度,可提高水滴聚結力,有利于電脫鹽,同時也促進電分散。電場強度超過一定范圍,對提高電脫鹽效果影響不大。目前國內煉廠大多采用全阻抗可調電脫鹽專用變送器,輸出電壓設有幾檔可調,以調節電場強度。
2.1.2 三注
2.1.2.1 注中和劑
作用:中和塔頂酸性物質,如HCl等,保持冷凝水pH值在7.5~8.5范圍內,充分發揮緩蝕劑作用。
注入部位:一般在塔頂餾出管道,也可根據要求,同時注入液體回流管線。
注入方式:一是注10%~20%濃度的氨水;優點是價格便宜,缺點是易揮發,不穩定,不能快速溶于水中與酸進行中和,防腐效果差,且無機氨易生產銨鹽,產生垢下腐蝕。二是注入有機胺中和劑,優點是熱穩定性好,易溶于水,在露點區能與HCl一起冷凝,避免出現強酸性區域和初凝區的酸性腐蝕,缺點是價格及成本較高。
氨注入量(裝置總用量)約為每噸原油4 g純氨,或按塔頂總流出量的20 ppm注入。有機胺注入量為15 ppm,調節范圍是控制塔頂回流罐冷凝水的pH值在7.5~8.5之間。
2.1.2.2 注緩蝕劑
作用:緩蝕劑可在鋼鐵表面形成一層保護膜,抑制腐蝕性介質對鋼鐵的侵蝕,達到防腐作用。且注入緩蝕劑對設備和管道還具有一定的清洗作用。
一是水溶性緩蝕劑:此類緩蝕劑一般加水配置成0.2%~1%濃度。
二是油溶性緩蝕劑:此類緩蝕劑一般加汽油配成0.2%~1%濃度。
注入部位:
水溶性緩蝕劑一部分注入塔頂管道注中和劑之后,保護塔頂冷凝冷卻系統;另一部分注入塔頂回流管道內,防止塔頂部腐蝕。
油溶性緩蝕劑只注入塔頂管道注中和劑之后。但因回流液中溶有部分緩蝕劑,可同時保護塔頂部及頂部冷凝冷卻系統。
注入量:一般為塔頂冷凝水量10~15 ppm,或為塔頂總餾出物約0.5 ppm。
常規緩蝕劑存在pH值不易控制,露點部位和較高溫(70~115℃)的部位防腐效果差,塔頂冷凝水質差(水黑鐵銹多)氯化銨與銹渣造成切水管堵塞,影響裝置正常運行,因此目前改注有機胺型緩蝕劑,它能同時代替注緩蝕劑和注氨,克服常規緩蝕劑的缺點,稱為中和緩蝕劑。
2.1.2.3 注水
塔頂管道內注氨后與氯化氫作用生成氯化銨鹽,逐漸沉積在管道及冷凝回流管壁上,造成介質阻力增大和傳熱速率下降,同時產生垢下腐蝕,從而縮短管道和冷凝器的使用壽命。
注水的作用就是使生成的氯化銨溶于水,避免上述不良影響。
注水部位:塔頂冷凝系統。
注水量:一般為塔頂總餾出物的5%~10%。(注水量應保證除去全部的氯化銨,若注水量過少,只將氯化銨潤濕,反而會增大設備與管線的腐蝕。)
2.1.3 增加在線腐蝕監測及PH值監測
針對高硫高酸原油,常減壓裝置增設在線腐蝕監測系統,及時發現設備管道腐蝕狀況;同時增設在線pH值監測,精準調節“三注”用量,保持pH值穩定,減緩腐蝕。
2.2 高溫部位的防腐措施
目前高溫位防腐主要靠對易腐蝕部位設備和管道進行材質升級來實現。在重質油、渣油系統的高溫部位,采用耐腐蝕的合金鋼材料。如加熱爐轉油線采用S31603或S31703,常壓重油換熱器、渣油換熱器采用不銹鋼管束;常、減壓塔底部采用不銹鋼復合鋼板,減底泵體采用III類耐腐蝕材質等。
3 結合工藝裝置改造實例,闡述高硫高酸原油設備及管線腐蝕措施
山東某地煉100萬t/a常減壓裝置,原加工渤海SZ36-1低硫高酸原油,現在改為加工Merry原油,性質如表1。
表1 原油一般性質

規范中將原油酸值≥0.5 mgKOH/g,且總硫含量(wt%)≥1.0%的原油,定義為高硫高酸原油。從表1中可看出,Merry原油硫含量高達2.81%,酸度高達2.8 mgKOH/g,分別高出規范規定的高硫高酸原油硫含量的2.8倍和酸值的5.6倍,屬高硫高酸原油。為實現改造后裝置仍能夠安全平穩運行,必須對原裝置部分流程進行改造,同時對裝置內設備及管道材質進行全面升級。
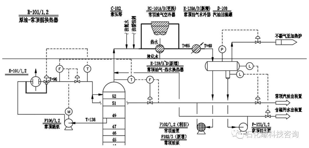
3.1 常壓塔頂循回流溫度調整
常壓塔頂壓力控制在40 kPa(g)左右,頂溫控制在110~130℃,經測算常頂露點溫度在90~98℃,初凝區位置主要集中在常壓塔頂上部幾層塔盤。將常頂循回流溫度提高至100℃左右,并且將塔頂冷回流匯入常頂循回流管道,保證總回流入塔溫度控制在90℃以上,以減少露點腐蝕。
常壓塔頂系統工藝流程圖如圖1所示。

圖1 常壓塔頂系統工藝流程圖
同時更換塔頂系統筒體及塔盤的材質,來增強塔頂系統抗露點腐蝕能力。塔頂筒體采用Q345R+S22053,塔盤48#-52#由傳統的0Cr13更換為雙相鋼S22053,塔體上頂循抽出管口和回流管口均更換為雙相鋼S22053。
塔頂低溫部位除采用工藝防腐外,還在易腐蝕部位實施襯里、加厚、噴涂料等手段來加強防腐。例如空冷器管束入口端相變區加鈦管襯里等。
3.2 設備及管道材質升級具體內容
本裝置改造部分的設備及管道選材嚴格執行中石化標準《SH/T3129-2012 高酸原油加工裝置設備和管道設計選材導則》。
按照上述規范中選材原則及加工高硫高酸原油蒸餾裝置主要設備推薦選材表,對裝置主要設備及管道材質升級的具體內容見表2~4。
表2 塔及加熱爐材質升級對照表

表3 冷換設備材質升級對照表

表4 主要管道材質升級對照表

表4(續)

4 結束語
1)通過選用與加工原油品種相適應的破乳劑,并對電脫鹽操作條件進行優化調整,有效地降低原油中的鹽含量,使塔頂冷凝水中的Cl-濃度減少,最終達到減緩分餾塔頂設備腐蝕的目的。
2)混用無機氨與有機胺中和緩蝕劑代替單用無機氨和緩蝕劑,能更好地發揮塔頂“三注”的防腐作用。
3)通過增上在線腐蝕監測及pH值監測設施,能夠隨時掌握設備管道腐蝕情況,及時采取維護措施;同時能精準調節“三注”用量,保持pH值穩定,減緩低溫位腐蝕。
4)將常壓塔頂冷回流匯入頂循回流管道,并調整匯合后的總回流溫度在90℃以上,同時配合常壓塔頂部分筒體及塔盤材質升級為雙相鋼,有效提高常壓塔頂系統的抗露點腐蝕能力。
5)對裝置重要而易腐蝕的部位,采用設備材質升級,進行重點防腐,達到提升整個生產裝置的抗腐蝕能力。實際生產過程中,還要根據裝置自身的特點,分析檢測設備發生腐蝕的原因,有機地采取工藝防腐和設備材質升級等綜合防腐措施,即可達到減緩甚至減少腐蝕的目的,進而延長設備使用壽命,提高常減壓蒸餾裝置加工高硫高酸原油的適應性,保證其安全、平穩、長周期運行。