一、離心式鼓風機工作原理
離心式風機主要靠離心力的作用,將外部氣體吸入旋轉葉輪的中心處,在離開葉輪葉片時,氣體流速增大,使氣體在流動中把動能轉換為靜壓能,然后隨著流體的增壓,使靜壓能又轉換為速度能,從而把輸送的氣體送入管道或容器內。工作原理如圖1所示。

圖1 離心式鼓風機工作原理
二、離心式鼓風機結構特點
離心式鼓風機的結構主要有機殼、轉子組件、密封裝置、軸承支承、潤滑系統等零部件構成。按軸承支承形式,其結構可制做為懸臂式(如圖2)和雙支承式(如圖3)。

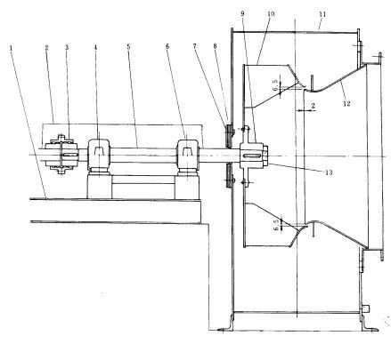
圖2 懸臂式離心鼓風機
1一底座;2一蓋;3一齒輪聯軸器;4一軸承;5一軸;6一軸承;7一填料護板;
8一填料密封;9一輪級;10一葉輪;11一殼體;12一進口錐體;13一鎖緊螺栓

圖3 雙支承離心鼓風機
1一底板;2一聯軸器;3一軸承蓋;4一軸承;5一護板;6一壓蓋;7一填料護板;8一密封填料;9一軸;10一銷釘;11一葉輪;12一蓋板;13一輪轂;14一板;15一進口錐體;16一殼體;17一進口葉片調節控制裝置;18一軸承;19一軸承托架;20一冷卻風機
1. 機殼
離心式鼓風機的機殼由鑄鐵制作,或用鋼板焊接而成。機殼根據葉輪形式可做成水平剖分或蝸殼狀。對于低壓離心鼓風機,機殼大都做成水平剖分式。
對于單級鼓風機大都做成蝸殼式。蝸殼的作用是將葉輪增壓后的氣體收集起來,然后流入流道。
離心式多級鼓風機機殼內有回流室、隔板、擴壓器等零件。氣體由擴壓器進入回流室,然后引入下一級葉輪,連續的把氣體送入管道。
2. 轉子組件
離心式鼓風機的主要部件是轉子,它是由葉輪、主軸、軸套、排氣室、平衡盤、密封、聯軸器等部件組成。
(1)葉輪
葉輪由輪盤、輪轂和葉片鉚接、焊接或整體鑄造而成。其主要作用是使氣體通過葉輪后提高壓力和氣流速度。
(2)主軸
主軸上裝有風機的轉動部件,其作用是傳遞轉矩使葉輪旋轉,一般離心式風機的軸伸出機殼外面。
(3)聯軸器
聯軸器連接驅動機和風機軸,傳遞驅動機的轉矩,也起安全連接作用。
3. 密封
化工廠用離心式鼓風機的級間密封多是迷宮式氣封,應用最多的迷宮式密封結構有拉別令密封(如圖4)和梳齒密封(如圖5)軸端密封多是O形環和漲圈式密封。
拉別令密封和梳齒密封的鑲片一般應是軟薄片金屬,例如合金鋁和不銹鋼薄片。非金屬材料常用塑料板。

圖4 拉別令密封

圖5 梳齒密封
4. 入口調節葉片裝置
進口葉片調節控制裝置是用來調節來自風葉的空氣流。其結構是風扇的入口有可移動的葉片,安裝在徑向方面,改變葉片的角度可使葉輪的速度發生變化。
進口葉片調節控制裝置是用鋼板焊接制成,所有的葉片都制作成在葉片主軸周圍旋轉90°以便調整來自風扇的空氣流動率。進口葉片調節控制裝置的結構如圖6所示。

圖6 進口葉片調節控制裝置
1一外殼;2一軸;3一葉片;4一拉臂
葉片的方向可閉合可敞開,以適應風扇的旋轉方向,以便給予葉輪的入口部件有效的預旋流。
5. 軸承
軸承是支承轉子、保證轉子能平穩旋轉的部件,同時還可調節旋轉轉子產生的徑向和軸向力。對于低壓低轉速的風機,大多選用滑動軸承;對于中壓以上高轉速的風機,大多選用滾動軸承。
6. 潤滑系統
離心式鼓風機的潤滑系統一般采用恒油位自流式潤滑,其形式很多,包括注油杯、注油槍等,但對于大型高速風機,則單獨有油泵、油箱、過濾器、冷卻器等潤滑油系統。











